A Symphony of Space

Meticulously crafted modern architecture featuring expansive living areas, private terraces, and bespoke interiors for the discerning few.

View Floor Plans
Ground and First Floor Plan Preview

Floor Layouts

Ground and First Floor

Ground & First Floor

Living Area 9.30m x 4.10m
Kitchen 3.75m x 3.85m
Parking 2 Car Spaces
Garden Private Front Garden

The ground floor features a spacious multipurpose hall and servant quarters, while the first floor opens into a grand double-height living area, formal dining, and a modern kitchen suite.

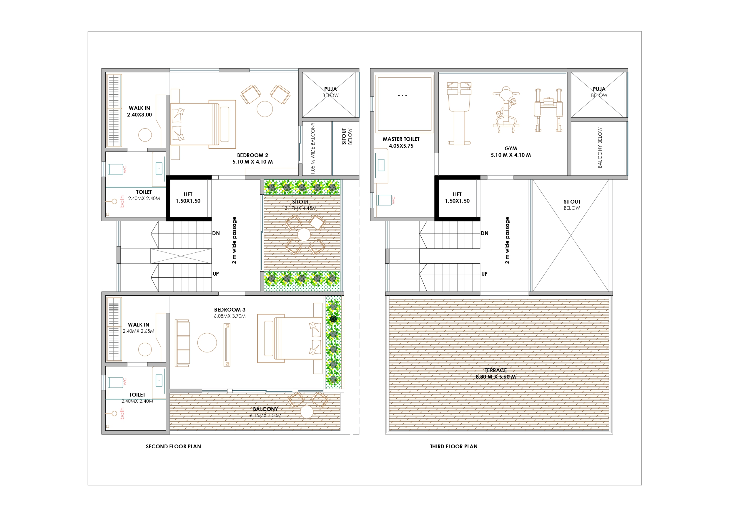
Second and Third Floor

Second & Third Floor

Master Bed 5.10m x 4.10m
Terrace 8.80m x 5.60m
Gym Private Fitness Wing
Leisure Large Sitout Balcony

The upper levels are dedicated to privacy and wellness, boasting a sprawling master suite with walk-in closets, a dedicated gym area, and a massive open terrace for evening entertaining.

Modern Conveniences

Smart Elevator

Integrated 1.50m x 1.50m lift servicing all floors for seamless vertical accessibility.

Triple Story

Distinct zones for social hosting, family living, and private sanctuary across three expansive levels.

Private Security

Controlled gate access with dedicated servant quarters and secure perimeter landscaping.